Apartamento T3

Braga, Braga

250.000 €

Apartamento T3
Enviar imóvel a amigo
 
   
 
   
Saber mais »  
Campos obrigatórios *
Apartamento T3, Braga, Braga 250.000 € REF: WE125
3
3
144 m²
155 m²
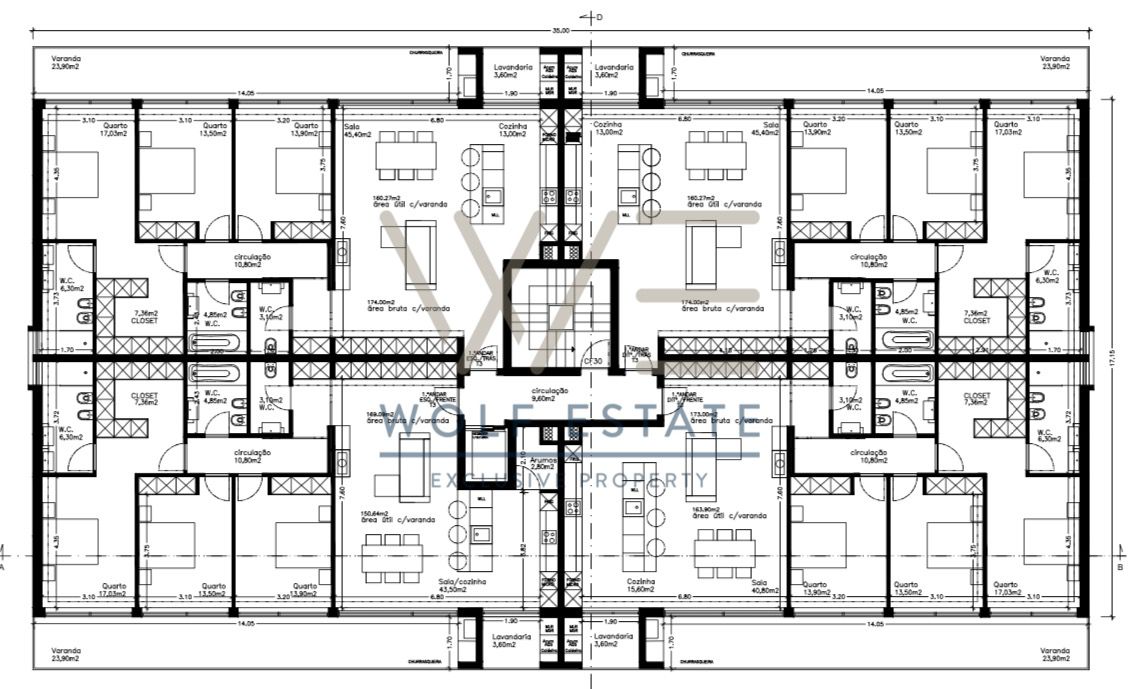
Empreendimento novo em construção com previsão de entrega em meados de 2020.

Excelente oportunidade para quem procura uma planta versátil, num prédio novo com excelentes acabamentos.

Alguns dos diferenciais deste apartamento estão na otimização dos espaços e no conforto pelas boas áreas que apresentam.
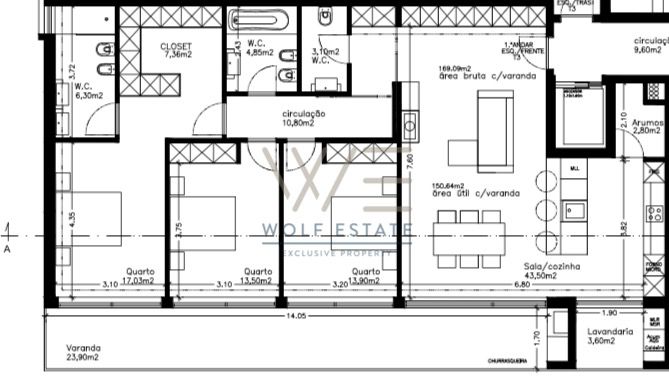
Na sala, com 44m2, tem uma perfeita integração em open-space da sala de estar, jantar e cozinha.
A varanda de 24m2 que se interliga com a sala, possui uma churrasqueira para receber os seus amigos.
A cozinha, integra-se numa perfeita simbiose com a sala e é totalmente equipada com equipamentos Bosch.
- Exaustor
- Placa de Indução
- Forno
- Micro ondas
- Máquina de lavar loiça
- Combinado Encastre

Na área intima, terá 3 excelentes quartos, com dimensões entre os 13m2 e os 17m2, um dos quais suite com um WC de 6m2.

Possui uma garagem box para 2 carros.

Este é o apartamento que procura para morar numa região central e ter conforto na sua vida.
Caso pretenda saber mais, contate-nos e poderemos realizar uma visita técnica.
Agarre esta oportunidade agora!
Tipo de imóvel Apartamento
Tipologia 3 Quartos
Objetivo Venda
Estado Em Construção
Preço 250.000 €
Ano Construção N/D
País Portugal
Distrito Braga
Concelho Braga
Freguesia Nogueiró e Tenões
Zona N/D
Interessado no Imóvel? Contacte-nos para receber informações adicionais ou agendar visita.
 
   
 
 
 
 
Enviar
Características Gerais
Gerais
  •  
Divisões
Divisões Área Pavimento Paredes Tectos Observações
 
Meio Envolvente
  •  
Facilidades
  •  
Domótica
  •  
Energias Renováveis
  •